To address the parcel delivery issues and replace the old falling apart letterbox I had come accross a youtube video of a parcel drop box that suited my situation, I could modify it to have a side opening door instead of front opening add a letter slot. Then because you can why no make it smart so it tells me when a letter is delivered or a parcel is placed inside.

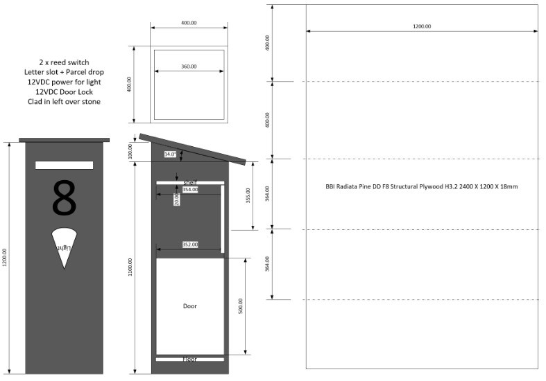
I sketched out my design in Visio and built the main carcass from a sheet of treated H3.2 plywood, resulting in a 400mm square box. The design features a hinged roof for parcel deliveries, with a shelf that allows parcels to drop into the lower compartment. A side-opening door provides easy access for retrieving mail and parcels.
To add some smart functionality, I repurposed two leftover reed switches from our house build—one on the roof and another on the letter slot—to detect deliveries. I also used an electric locker lock with a built-in reed switch to indicate whether it's open or closed. The lock operates on 12V DC and has a 600N holding force when unpowered, ensuring secure access.


Parts list
2400mm x 1200mm x 18mm H3.2 Plywood - Bunnings
Sandleford 250mm Stainless Steel Letter Plate - Bunnings
Custom LED backlight - Aliexpress
12V Heavy Duty Waterproof IP67 Smart Lock For Outdoor Electronic Lockers - Aliexpress
Lift Support Gas Strut - Aliexpress
I had previously built several custom shields for the WT32-ETH01 ESP running ESPHome, so integrating the letterbox into my smart home setup was a natural next step.
For this project, I used spare relays for powering the LED sign and to control lock and its power. A button switch was added to the rear of the letterbox, completing the circuit and triggering the lock to open when pressed.
I also made use of the spare GPIOs to monitor various reed switches:
Once everything was installed, I set up Node-RED automation to add intelligence to the system. It:
Since we live down a right-of-way, I wanted to ensure secure access. When heading to check the mail, I activate the power to the lock via Home Assistant. However, the lock won’t release until I complete the circuit by pressing the button at the letterbox. Once the door is detected as open, power to the lock is switched off, ensuring it locks immediately upon closing. The button remains inactive until power is restored to the lock, preventing unauthorized access.